高压干式串联电抗器


详细信息
1.产品概述
Product overview


特朗克(TLunK)公司TLKL系列的高压干式串联电抗器适用于3~10KV 电力系统中,产品由优质硅钢片及线圈经环氧浇注而成,具有体积小、可靠 性高、稳定性强、无泄漏等特点。其是无功补偿及谐波治理的主要配套设备, 它与并联电容器串联构成LC回路,以抑制电网电压波形畸变,抑制流过电容 器的谐波分量和限制电容器组合闸涌流。

2.型号说明
Model description




例如:TLKL1-11-100E/6代表特朗克品牌高压串联铁芯电抗器,普通型的、11KV、配合电容器额定 容量100Kvar的铁芯6%电抗率的电抗器。


3.产品特性
Product characteristics


◆通过设计软件优化电抗器设计,可根据客户要求,快速精准的确定产品 的结构和参数。
◆优化选择铁芯磁通密度和导线电流密度,噪声小、损耗低、寿命长、温 升低。
◆合理的结构设计,耐受短路电流能力强。
◆空芯电抗器绕组采用多种小截面的膜包导线绕制,线性度好,具有很强 的限制短路电流的能力,绝缘性能优良、损耗低,安装方式灵活,适用 于框架式结构。
◆铁芯电抗器线圈采用环氧树脂浇注,具有很高的动热稳定性,绝缘强度 好,机械强度高、可靠性高、漏磁少、体积小,非常适合放于柜内。

4.技术参数 及使用条件
Technical parameters and operating conditions


◆额定电压/频率:3~10KV,50/60HZ。
◆参数精度:±3%
◆电抗率:1%、6%、7%、12%、13%、14%等。
◆线性度:1.8In
◆过电流:1.35 In
◆绝缘等级:F级
◆噪声:≤50dB
◆环境温度:温度-25℃~+50℃(特殊设计最低-40℃~,最高55℃)。
◆冷却方式:自然冷却
◆制造方式:三相、铁芯
◆相对湿度:不大于95%。
◆海拔:常规2000米,更高海拔可定制。
◆适用场所:无可燃气体、无腐蚀气体、无强烈震动的场所,谐波分量 不超过相关标准。
◆安装:安装在柜时应偶良好的通风条件,安装件隔离水平方向>5cm, 垂直放心>12cm。
◆技术标准:产品遵照和执行的标准IEC676。 

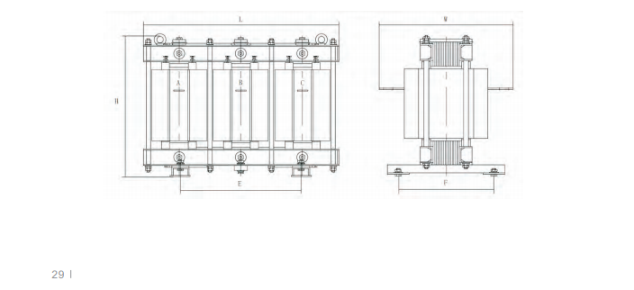
5.产品型号及外形尺寸
Product Type and Outward Size




 

版权所有:Copyright © 2018-2019 特朗克(深圳)科技有限公司 地址:深圳市龙岗区布吉街道东方半岛社区布龙路1号 备案号:粤ICP备18102456号-1
15914196212